REVOLVING DARKROOM DOORS

Clear Doors Available |

Clear Doors Available
With These Outstanding Features
Sturdy rigid construction
Stationary floor with non-skid mat
Steel members riveted and welded for extra strength
Reinforced steel flange around the outside
Easy rotation from inside or outside
Center suspension and self aligning ball bearings
Wrap around aluminum handrail
Convenient finger grips circle the outside
|
CALIFORNIA STAINLESS Revolving Darkroom Doors are safe, convenient and sturdy. They are shipped complete and assembled. They fit into standard door opening.
Now there's a revolving door that gives you ALL the features you look for in a darkroom door. It's the latest in safe, easy access to any type of darkroom. Keeps darkrooms completely light safe, protecting expensive film form fogging. Helps keep darkrooms cleaner, too. Personnel can enter of leave without interfering with other activities.
Two-way darkroom doors are available in "Thinline" 28", Standard 36", 41", 48", Handicapped accessible 54", and 65".
A Three-way darkroom door is supplied in a 48" and the four-way comes in a 54". Custom size doors can be quoted upon request. The Two-way "Thinline" 28" and Standard 36" are available in a Clear View for clean rooms, computer rooms and air lock structures.
Available for permanent installation, attaching directly to the wall or as a pop out door. On the Pop Out door, once in place, the unique breakaway hardware makes it easy to pop the door loose in case of emergency. The metal door comes on casters and both it and the ABS door can have hinges as an option. The Pop Out feature makes moving large pieces of equipment in and out an easy manner. Reinstallation of the Pop Out is just as easy.
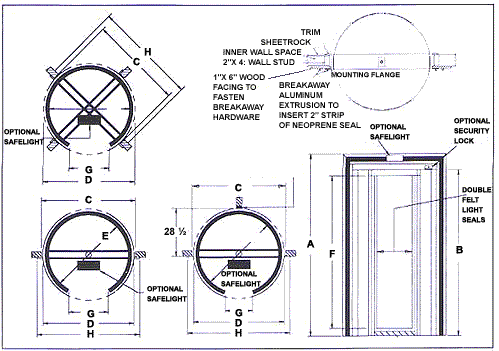
REVOLVING DARKROOM DOOR
Key Description |
MODEL 2W28 |
MODEL 2W36 |
MODEL 2W41 |
MODEL 2W48 |
A Overall Height |
82.25" (208.91cm) |
82.25" (208.91cm) |
82.25" (208.91cm) |
82.25" (208.91cm) |
B Wall Opening Height |
80" (203.20cm) |
80" (203.20cm) |
80" (203.20cm) |
80" (203.20cm) |
C Wall Opening Width |
29" (73.66cm) |
36" (91.44cm) |
42" (104.14cm) |
49.5" (125.733cm) |
D Overall Diameter |
28" (71.12cm) |
35" (88.90cm) |
40.5" (102.87cm) |
46.75" (118.74cm) |
E Inside Diameter |
25.5" (71.12cm) |
32.5" (82.55cm) |
38.5" (97.79cm) |
45" (114.30cm) |
F Inside Height |
74.75" (189.86cm) |
74.75" (189.86cm) |
74.75" (189.86cm) |
74.75" (189.86cm) |
G Entrance |
18" (45.72cm) |
21.5" (53.75cm) |
26" (66.04cm) |
30" (76.20cm) |
H Overall Width |
34.88" (88.60cm) |
41.88" (106.38cm) |
47.38" (120.35cm) |
53.63" (136.22cm) |
Door Weight |
157 lbs (72.21 kg) |
187 lbs (84.82 kg) |
200 lbs (90.47 kg |
265 lbs (120.20 kg) |
Crated Weight |
203 lbs (92.08 kg) |
233 lbs (105.68 kg) |
248 lbs (112.49 kg |
315 lbs (142.88 kg) |
|
|
Key Description |
MODEL 3W48 |
MODEL 2W54 |
MODEL 4W54 |
MODEL 2W65 |
A Overall Height |
82.25" (208.91cm) |
82.25" (208.91cm) |
82.25" (208.91cm) |
82.25" (208.91cm) |
B Wall Opening Height |
80" (203.20cm) |
80" (203.20cm) |
80" (203.20cm) |
80" (203.20cm) |
C Wall Opening Width |
49.5" (125.733cm) |
56" (142.24cm) |
56" (142.24cm) |
67" (170.18cm) |
D Overall Diameter |
46.75" (118.74cm) |
53" (134.62cm) |
53" (134.62cm |
65.25" (165.74cm) |
E Inside Diameter |
45" (114.30cm) |
51" (129.54cm) |
51" (129.54cm) |
63.5" (161.29cm) |
F Inside Height |
74.75" (189.86cm) |
74.75" (189.86cm) |
74.75" (189.86cm) |
74.75" (189.86cm) |
G Entrance |
20" (50.80cm) |
36" (91.44cm) |
18" (45.72cm) |
36" (91.44cm) |
H Overall Width |
53.63" (136.22cm) |
62.88" (159.72cm) |
62.88" (159.72cm) |
72.13" (183.21cm) |
Door Weight |
265 lbs (120.20 kg) |
315 lbs (142.88 kg) |
315 lbs (142.88 kg) |
517 lbs (234.5 kg) |
Crated Weight |
315 lbs (142.88 kg) |
365 lbs (165.56 kg) |
365 lbs (165.56 kg) |
N.A. |
|
|